Kitchen/Dining Room
A charming double-fronted cottage-style home.
A charming double-fronted cottage-style home.
Living Area
5.59m x 3.10m
Kitchen/Dining
5.59m x 3.26m
Utility
2.13m x 1.66m
Cloakroom
1.84m x 1.15m
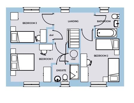
Bedroom 1
4.53m(max’) x 3.04m
Ensuite
2.15m x 1.40m
Bedroom 2
3.47m x 3.11m
Bedroom 3
3.36m(max’) x 2.43m
Bathroom
2.00m x 1.91m
Kitchen/Dining Room
Utility
Garage with additional parking space
Ensuite
Specification
This double-fronted cottage-style home features a spacious kitchen/dining room with separate lounge, a handy utility room, and patio doors leading onto the rear garden.
Upstairs is the main bathroom and three bedrooms, with the master benefitting from an ensuite. Outside, there is a single garage with additional parking space.
"*" indicates required fields
"*" indicates required fields
Computer generated images, photographs and floor plans are not to scale and are for illustrative purposes and information only. All dimensions indicated are approximate and furniture layouts are purely for illustrative purposes only. Homes may be a ‘handed’ (mirror image) version of the illustrations shown. Specifications may change depending on house type and are subject to availability. Choices and upgrades are dependent on the stage of construction. Finishes, materials, boundary and elevation treatments, parking arrangements and external spaces may vary from those shown. Landscaping is suggestive, and for illustrative purposes only.
See individual plot details and speak to a sales advisor for more information.
Gilbert & Goode reserve the right to make alterations to the development without prior notice.